NEW LINE UP COMING SOON!
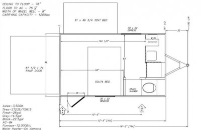
Modern Buggy is a Midwest company focused on building durable, all-weather, and affordable RVs that help families get outside and explore. They build lightweight RV's that are tough, towable, and built for real adventure. From teardrop trailers to toy haulers, every unit is lightweight and designed to go the distance. Durable where it counts, simple where it matters, and light enough to tow with the car you already drive.





